
Bandreisserhof
Drei reetgedeckte alte Höfe direkt am Elbdeich gelegen, welch ein prachtvoller Anblick! In bedauernswertem Zustand jedoch der Hof der „Bandreisser“, der einstigen Zunft der Weidenflechter und Böttcher.
Verlassene Bauernhöfe gibt es einige, nur wenige visionäre Bauherren mit Gespür für das Potential dieser prächtigen Gebäude. Duensing Edye Architekten erhielten die anspruchsvolle Aufgabe, den Bandreisserhof behutsam aus dem Schlaf der Jahrhunderte zu führen, unter seinem raumgreifenden Dach zeitgemäßes Leben zu ermöglichen.
Zunächst ging es um die Sicherung der historischen Bausubstanz. Durch eine neue Deckung aus Reet konnte die hölzerne Ständerkonstruktion gerettet werden. Der schrittweise Ersatz des Rohbaus, die energetische Optimierung der Gebäudehülle und der Einbau moderner Energiesysteme geben dem Hof die Basis für eine lange Zukunft.
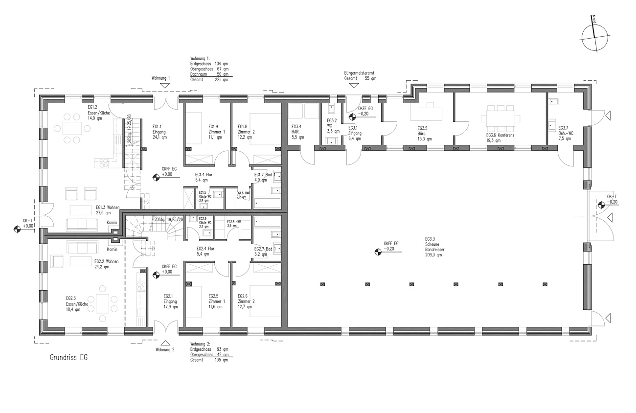
Mit dem sensiblen Ausbau sind zwei großzügige Wohneinheiten entstanden, beide mit weitem Blick über das Marschland der Elbe. In dem beeindruckenden Volumen der Scheune wurden Serviceeinheiten für das künftige Museum der Bandreisser realisiert.
Die ausgeprägte Schönheit des alten Hofes kommt heute durch die sorgfältige Wahl der Materialien und die souveräne Behandlung der Details eindrucksvoll zur Geltung.